|
The Volkswagen Repair Manual: Station Wagon / Bus: 1968-1979 is a definitive reference source of technical automotive repair and maintenance information for the classic air-cooled Volkswagen Type 2 models.
Click here to view specific chassis number coverage for this Type 2 Bus and Station Wagon repair manual.
The aim throughout this repair manual has been simplicity, clarity and completeness, with practical explanations, step-by-step procedures, and accurate specifications.
Though the do-it-yourself Volkswagen owner will find this manual indispensable as a source of the same detailed maintenance and repair information available at an authorized Volkswagen dealer, the Volkswagen owner who has no intention of working on his or her car will find that reading and owning this manual will make it possible to discuss repairs more intelligently with a professional technician.
This Volkswagen Type 2 service manual covers Station Wagons, Panel Trucks, Pickup Trucks, Kombis and Campmobiles for the model years 1968 through 1979. This manual was created specifically to cover models built for sale in the United States and Canada. Here is a sample of the kind of up-to-date information you will find:
Technical features:
- Tune-up and oil change: specifications and procedures for all models, up through the latest 1979 vehicles
- Troubleshooting, replacing or repairing every component of the electrical system - with complete wiring diagrams
- Troubleshooting and repair of the electronic fuel injection system used on 1975 and later models
- Troubleshooting, repairing and rebuilding the clutch, manual transmission and automatic transmission
- Rebuilding the carburetor - including dual carburetors
- Rebuilding disc and drum brakes
- Rebuilding the front axle and steering gearbox
- Comprehensive engine repair and rebuilding data - including 1978 and later engines with hydraulic valve lifters
- Spark advance curves for all distributors-including the transistorized ignition system used on 1979 California models
- Emission controls-including 1973 and later exhaust gas recirculation systems, and the 1973 and 1974 air injection system
- Adjusting passenger doors and sliding cargo doors
- Tolerances, wear limits, settings and tightening torque specifications for every part of your vehicle
|
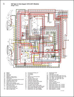
Volkswagen Bus (Type 2) 1971
Color Wiring Diagram Appendix
Find and repair electrical system problems with detailed color wiring diagrams for Type 2 models.
Lubrication and Maintenance
See how to perform routine maintenance procedures, such as adjusting Alternator or Generator belt tension.
Engine
Cylinder head service and reconditioning, including complete cylinder head and valve train specifications.
Transmission and Rear Axle
Transmission, differential and drive axle repair and rebuilding, including procedures for repairing and replacing CV joints.
|